西鈴蘭台駅徒歩3分。令和5年9月リノベーション済! 山本ビル
登録日/2025年09月20日 更新日/2026年04月27日
お問い合わせ番号/ 26350c
マンション
賃料6.5万円
兵庫県神戸市北区南五葉1丁目- 敷金/礼金
- 50,000円 / 150,000円
- 管理費/共益費
- 0円 / 0円
- 築年月
- 【--】1979年02月 / 築47年
- 最寄駅
-
- 神戸電鉄粟生線
- 西鈴蘭台駅徒歩3分
- 間取り
-
- 間取り
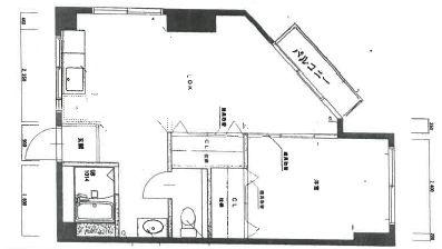
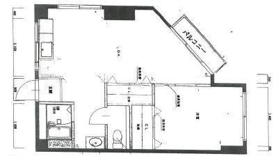
- 1LDK
- 専有面積
- 40.00m2
- 階数/住階
- 4階 / 2階
- 保証金
- 更新料
- バルコニー面積
- -
- ペット備考
- -
- リフォーム
- - -
- 学校区
-
- 小学校区
- - 距離:-
- 中学校区
- - 距離:-
- 部屋向き
- -
- 借地権種類
- バイク置き場
-
- -
- 料金
- -
- 空き戸数/総戸数
- -/-
- 取引態様
- 仲介
- 備考
- -
- 敷引
- 保険料
- ベランダ面積
- -
- テラス面積
- -
- 部屋番号:棟番号
- 201
- リノベーション
-
- -:-
- -
- 建物構造
- 鉄筋コンクリート造
- 駐車場
-
- 有り有料
- 駐車場料金
- 10000円
- 駐車場空き台数
- -
- 近隣駐車場距離
- -
- 駐輪場
-
- -
- 料金
- -
- 現況
- 空き
- 引渡時期
-
- 相談
- ---
- 法令に基づくその他制限事項
- -
(社)全国宅地建物取引業保証協会
(社)近畿圏不動産流通機構
(社)近畿地区不動産公正取引協議会
(社)近畿圏不動産流通機構
(社)近畿地区不動産公正取引協議会















