中古戸建て
南西向きで日当たり良好! ヘーベルハウスの注文住宅! カーポートあり!
登録日/2026年04月05日 更新日/2026年04月24日 次回更新予定日/随時
お問い合わせ番号/ 36164
中古戸建
1,980万円
兵庫県神戸市北区有野台2丁目- 建物構造/階建
- 軽量鉄骨造/2階建
- 築年月
- 【平成1年】1989年04月 / 築37年
- 最寄駅
-
- 神戸電鉄三田線
- 岡場駅徒歩18分
- 間取り/面積
-
- 間取り
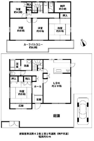
- 5SLDK
- 土地面積
- 228.97m2 / 69.26坪
- 延床面積
- 147.81m2 / 44.71坪
- 延床面積1F
- 80.35m2
- 延床面積2F
- 67.46m2
この物件の主な特徴
前道6m以上 日当り良好 LDK広さ 20帖以上 和室 収納スペース 納戸 システムキッチン カウンターキッチン トイレ2ヶ所 バルコニー バルコニー有 ルーフバルコニー ※設備名をクリックで対象の設備の物件一覧を絞り込み-
- 学校区
-
- 小学校区
- ありの台小学校 距離:337m
- 中学校区
- 有馬中学校 距離:310m
- 間取り詳細
-
階数 区分 広さ - 駐車場
-
- 駐車可能台数
- 有1台
- 駐車場所
- -
- 分譲駐車場
- -
- 駐車料金
- -
- 税
- -
- タイプ
- カーポート
- 公共設備
-
- ガス
- 都市ガス
- 水道
- 公営水道
- 汚水
- 公共下水
- 雑排水
- 公共下水
- 接道状況 他
-
- 向
- 一方
- 角地
- -
- 公道
- 南西
- 幅員
- 6.00m
- 接面
- 15.00m
- 私道
-
- 私道
- -
- 持分
- -
- 面積(区分)
- -
- 面積
- -
- 面積(単位)
- -
- セットバック面積
-
- 状態
- セットバック無
- 幅
- -
- 面積
- -
- 現況
- 空家
- 引渡時期
- 相談
--- - 地目
- 宅地
- 地勢
- -
- 用途地域
- 第一種低層住居専用地域
- - 建ぺい/容積率
- 50%/100%
- 都市計画
- 市街化区域
- 建築許可理由
- -
- 建築確認番号
- -
- リフォーム
- -
-
キッチン:-
浴槽:-
トイレ:-
壁:-
床:-
全室:-
その他:-
洗面所:-
給湯器:-
給排水管:-
内装全面:-
外壁:-
屋根:-
その他:- - リノベーション
- -
- - 土地権利
-
- 権利
- 所有権
- 備考
- -
- 権利金
- -
- 再建築
- -
- 国土法届出
- 不要
- その他制限事項
- -
備考:- - フラット利用
- -
- 手付金保証
- -
- 町会費
- --
- リボーン21
- -
- 備考
- -
- 取引態様
- 仲介
ローンシミュレーション
- 物件価格
- 1,980万円
- 金利
- 返済期間
-
年
※物件によってはローン年数が変わる場合がございます。
- 頭金
-
万円
※半角数字でご入力ください。
- ボーナス併用支払い
-
併用する
1980.00万円のうちボーナス返済分
万円
※半角数字でご入力ください。
- 月割返済額
- ボーナス支払い額
(年2回)
※金利につきましては各金融機関の審査金利及び融資金利により異なります。
実際の返済額は結果と異なりますので、資産計画の目安としてご利用ください。
詳しいお問い合わせは、こちらよりご相談ください。
(社)全国宅地建物取引業保証協会
(社)近畿圏不動産流通機構
(社)近畿地区不動産公正取引協議会
(社)近畿圏不動産流通機構
(社)近畿地区不動産公正取引協議会
















