建築条件なし土地
建築条件なし土地! お好きな工務店・ハウスメーカーで建築できます! 現況更地!
登録日/2026年03月13日 更新日/2026年04月28日 次回更新予定日/随時
お問い合わせ番号/ 36078
土地
2,800万円
兵庫県神戸市北区鈴蘭台北町3丁目- 建物構造/階建
- -/-
- 最寄駅
-
- 神戸電鉄有馬線
- 鈴蘭台駅徒歩14分
- 神戸電鉄有馬線
- 北鈴蘭台駅徒歩17分
- 神戸電鉄粟生線
- 鈴蘭台西口駅徒歩18分
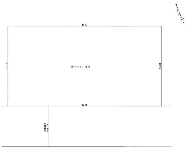
- 土地面積/坪数
- 488.90m2 / 147.89坪
-
- 坪単価
- 18.90万円
- 学校区
-
- 小学校区
- 小部小学校 距離:453m
- 中学校区
- 小部中学校 距離:656m
- 公共設備
-
- ガス
- -
- 水道
- -
- 汚水
- -
- 雑排水
- -
- 接道状況 他
-
- 向
- 一方
- 角地
- -
- 公道
- 南
- 幅員
- 8.10m
- 接面
- 30.40m
- 私道
-
- 私道
- -
- 持分
- -
- 面積(区分)
- -
- 面積
- -
- 面積(単位)
- -
- セットバック面積
-
- 状態
- -
- 幅
- -
- 面積
- -
- 借地期間・地代
-
- 借地機関条件
- -
- 借地権契約期間
- -
- 借地権満了日
- -
- 地代
- -
- 建築条件
- なし
- 土地現況
- 更地
- 引渡条件
- -
- 引渡時期
- 即引き渡し可
--- - 地目
- 宅地
- 地勢
- 平坦
- 用途地域
- 第一種低層住居専用地域
- - 建ぺい/容積率
- 50%/100%
- 都市計画
- 市街化区域
- 建築許可理由
- -
- 土地権利
-
- 権利
- 所有権
- 備考
- -
- 再建築
- -
- 国土法届出
- 不要
- その他制限事項
- -
備考:- - フラット利用
- -
- 手付金保証
- -
- 町会費
- --
- リボーン21
- -
- 備考
- -
- 取引態様
- 仲介
ローンシミュレーション
- 物件価格
- 2,800万円
- 金利
- 返済期間
-
年
※物件によってはローン年数が変わる場合がございます。
- 頭金
-
万円
※半角数字でご入力ください。
- ボーナス併用支払い
-
併用する
2800.00万円のうちボーナス返済分
万円
※半角数字でご入力ください。
- 月割返済額
- ボーナス支払い額
(年2回)
※金利につきましては各金融機関の審査金利及び融資金利により異なります。
実際の返済額は結果と異なりますので、資産計画の目安としてご利用ください。
詳しいお問い合わせは、こちらよりご相談ください。
(社)全国宅地建物取引業保証協会
(社)近畿圏不動産流通機構
(社)近畿地区不動産公正取引協議会
(社)近畿圏不動産流通機構
(社)近畿地区不動産公正取引協議会













