◆道場町日下部◆道場南口駅10分◆中古戸建◆
●道場南口駅徒歩10分 ●フラットな土地約74坪 ●地震に強い2×4住宅 ●●2020年外壁塗装実施 ●管理された芝生の広いお庭が魅力 ●カースペースゆったり2台並列可能
登録日/2025年12月16日 更新日/2026年03月13日 次回更新予定日/随時
お問い合わせ番号/ 35676
中古戸建
2,380万円
(価格公表日:2025-12-16)
兵庫県神戸市北区道場町日下部130- 建物構造/階建
- 木造/2階建
- 築年月
- 【平成13年】2001年12月 / 築24年
- 最寄駅
-
- 神戸電鉄三田線
- 道場南口駅徒歩10分
- 神戸電鉄三田線
- 神鉄道場駅徒歩14分
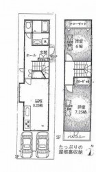
- 間取り/面積
-
- 間取り
- 4LDK
- 土地面積
- 247.93m2 / 74.99坪
- 延床面積
- 120.37m2 / 36.41坪
- 延床面積1F
- -
- 延床面積2F
- -
オススメ
この物件の主な特徴
平坦地 緑豊かな住宅地 市街地が近い 駅まで平坦 階建 2階建 枠組壁工法 2×4工法 採光面 2面採光 全室2面採光 LDK広さ 18帖以上 全居室6帖以上 和室 電気 上水道 公営 汚水 下水道 ガス 個別プロパン フローリング リビング階段 全居室収納 収納スペース クローゼット ウォークインクローゼット システムキッチン カウンターキッチン ガスコンロ コンロ口数 三口 パントリー 独立洗面台 シャンプードレッサー バス広さ 1坪以上 オートバス 追い焚き シャワー 温水洗浄便座 バルコニー バルコニー有 ワイドバルコニー 南面バルコニー ルーフバルコニー バルコニー・屋上に水栓あり 庭10坪以上 南庭 眺望良好 田園風景 山が見える 入居可能時期 即入居可 シャワールーム ※設備名をクリックで対象の設備の物件一覧を絞り込み-
- 学校区
-
- 小学校区
- 道場小学校 距離:1328m
- 中学校区
- 北神戸中学校 距離:1441m
- 間取り詳細
-
階数 区分 広さ 1F LDK 18.2帖 1F 和 6.0帖 2F 洋 8.0帖 2F 洋 8.0帖 2F 洋 7.5帖 - 駐車場
-
- 駐車可能台数
- 有2台
- 駐車場所
- -
- 分譲駐車場
- -
- 駐車料金
- -
- 税
- -
- タイプ
- カースペース
- 公共設備
-
- ガス
- 個別プロパン
- 水道
- 公営水道
- 汚水
- 公共下水
- 雑排水
- 公共下水
- 接道状況 他
-
- 向
- 一方
- 角地
- -
- 公道
- 東
- 幅員
- 5.70m
- 接面
- 13.03m
- 私道
-
- 私道
- -
- 持分
- -
- 面積(区分)
- -
- 面積
- -
- 面積(単位)
- -
- セットバック面積
-
- 状態
- セットバック無
- 幅
- -
- 面積
- -
- 現況
- 空家
- 引渡時期
- 即引き渡し可
--- - 地目
- 宅地
- 地勢
- 平坦
- 用途地域
- 第一種住居地域
- - 建ぺい/容積率
- 60%/200%
- 都市計画
- 市街化区域
- 建築許可理由
- -
- 建築確認番号
- 第SN101-02231号
- リフォーム
- -
-
キッチン:-
浴槽:-
トイレ:-
壁:-
床:-
全室:-
その他:-
洗面所:-
給湯器:-
給排水管:-
内装全面:-
外壁:-
屋根:-
その他:- - リノベーション
- -
- - 土地権利
-
- 権利
- 所有権
- 備考
- -
- 権利金
- -
- 再建築
- -
- 国土法届出
- 不要
- その他制限事項
- 高度地区
備考:- - フラット利用
- -
- 手付金保証
- -
- 町会費
- --
- リボーン21
- -
- 備考
- -
- 取引態様
- 仲介
ローンシミュレーション
- 物件価格
- 2,380万円
- 金利
- 返済期間
-
年
※物件によってはローン年数が変わる場合がございます。
- 頭金
-
万円
※半角数字でご入力ください。
- ボーナス併用支払い
-
併用する
2380.00万円のうちボーナス返済分
万円
※半角数字でご入力ください。
- 月割返済額
- ボーナス支払い額
(年2回)
※金利につきましては各金融機関の審査金利及び融資金利により異なります。
実際の返済額は結果と異なりますので、資産計画の目安としてご利用ください。
詳しいお問い合わせは、こちらよりご相談ください。
(社)全国宅地建物取引業保証協会
(社)近畿圏不動産流通機構
(社)近畿地区不動産公正取引協議会
(社)近畿圏不動産流通機構
(社)近畿地区不動産公正取引協議会






































